stanovi

Kompleks B164 poseduje ukupno 82 apartmana, stukrura jednosobnih studia ili dvosobnih apartmana. Stanovi su u kvadraturama od 18m² do 76m², a moguće je i spajanje u veće jedinice.
Pored apartmana, objekat poseduje i sedam lokala dostupnih kako za prodaju, tako i za najam. Na prvom nivou nalazi se šest lokala kvadratura od 28m² do 31m², a na drugom spratu jedan veći lokal kvadrature 80m² – pogodan za restoran.

Spoj modernog i tradicionalog stila bio je princip kojim smo se vodili i pri izgradnji enterijera. Apartmani se daju u hrastovom/bambus parketu, italijanskoj sanitariji i keramici, i uvoznim prekidačima bez rasvete. Toplotna efikasnost unutar celog objekta postignuta je kvalitetnom spoljnom stolarijom izrađenom u kombinaciji drvo–aluminium, a grejanje je na struju, norveškim radijatorima.
Sve fotografije vezane za enterijer u prezentaciji prikazuju predlog enterijerskog rešenja apartmana.
Kompleks poseduje lift, kao i lobi u kom ima prostora za recepciju – ako se u budućnosti iskaže potreba za njom.

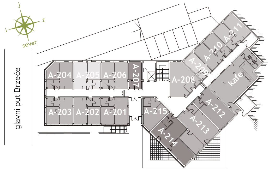
nivo 2

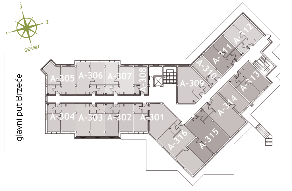
nivo 3

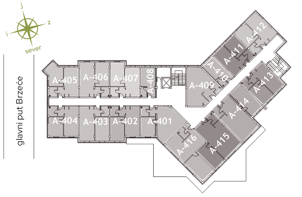
nivo 4

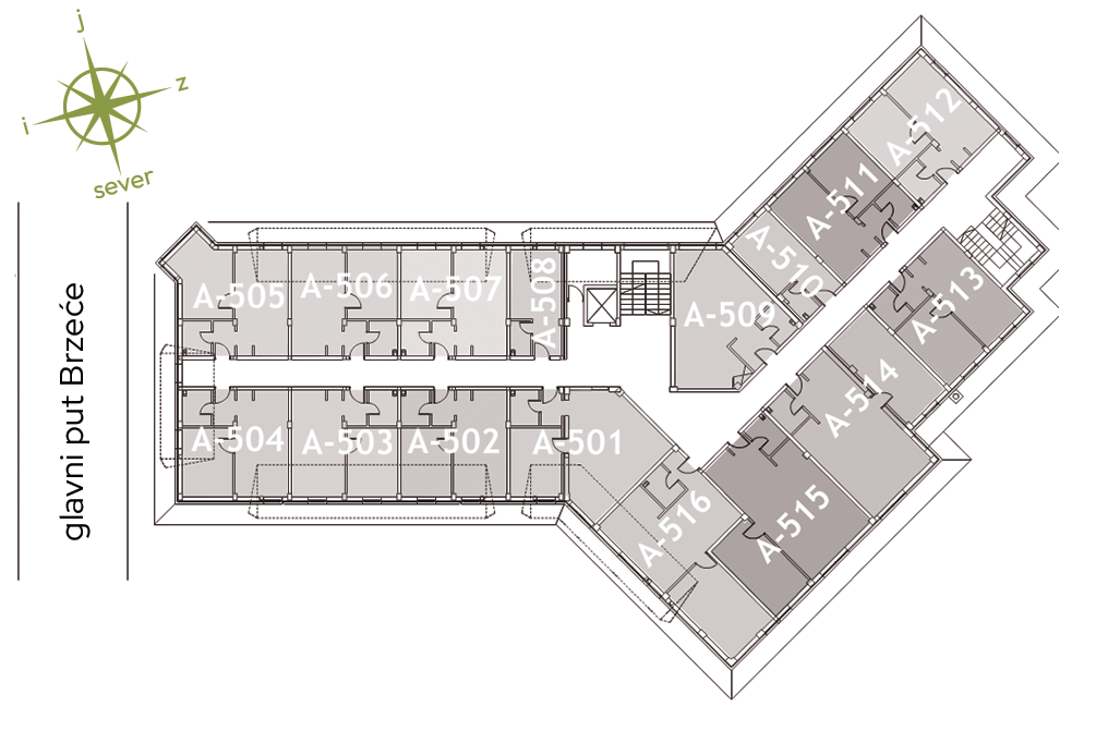
nivo 5

nivo 6

nivo 7